Foothill House : Pine Bush, NY : New Build : Construction TBD

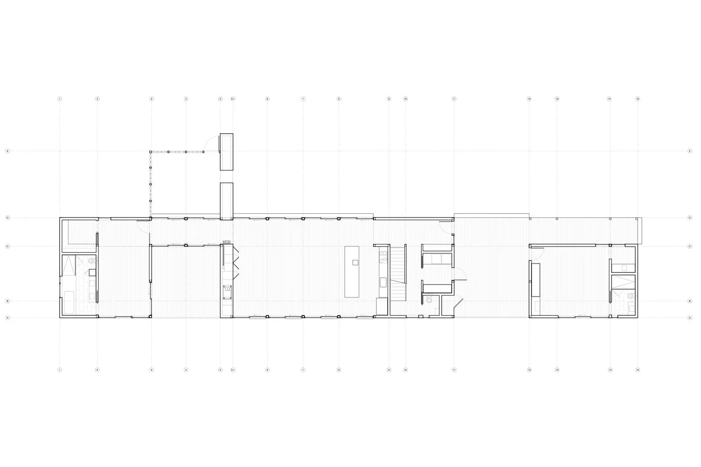
This spacious retreat located on an 18 acre site in upstate New York offers the comforts of modern living while still maintaining a direct connection to the scenic beauty of the Catskill forests. Its long, linear shape, oriented east to west, takes advantage of a full southern exposure for passive heating. This elongated floor plan also allows for wide, sweeping views of the surrounding wooded landscape. The screen patio pushes the ground floor plan outside while the seating porch pulls the exterior inside. The covered breezeway, a feature derived from traditional American dogtrot houses, separates the main house and guest house spaces while providing a covered entry for both. A roof deck on the second floor allows for an elevated view down the sloping site.

The exterior of the house is treated with a corrugated Corten steel sheathing. Its warm,  subdued appearance, as well as its vertical orientation, subtly references the woody maze of towering oak trees that enclose the site. The low-lying, sloped massing of the house allows for a more natural insertion into the existing topography.

The living and work spaces, which comprise most of the program, are concentrated at the ground floor level to maintain access to the outdoor areas. Long bands of windows provide both generous daylighting and unobstructed views to the forest landscape beyond. Cedar paneling, used as an accent material inside, extends out, wrapping around exterior walls to further draw the interior outside.

The overall result is an accommodating yet unobtrusive architectural intervention that humbly defers to the natural beauty of the surrounding landscape.